
拉玛九市中心推出重磅项目,全新期房发售,单价仅12.5万泰铢,距离Rama9地铁站仅500米,紧挨尚泰购物中心/G塔/电子城。
Rama9新项目,位于拥有纽约华尔街、上海陆家嘴之称的曼谷新一代商业核心区Rama9。拉玛九是曼谷新一代 CBD,近年罕见优质的投资地段。
中国驻泰大使馆、泰国文化中心、辉煌华人居住区(唐人街)、尚泰百货Central Plaza Rama9等均在此区域,繁华便捷、华人众多,一直是中国人最喜欢投资的曼谷区域之一!
Noble的公寓有一个特点,那就是开盘时一定是它的最低价,后面无论是新房还是二手房都会涨价,而且每平米至少涨3-5万泰铢,现在Nue Epic Asok-Rama9单价12万泰铢起售,30㎡的一居室336万泰铢,拉玛九市中心的公寓没有一个会比这个价格低!!
项目名称:Noble Nue Epic Asok-Rama9
开发商:诺博Noble地产
地理位置:距离 MRT Phra Rama9 站 500米
项目面积:24000㎡
项目类别:4栋高层住宅,共计3107户+9个商铺
AB栋 47层
C栋 34层
D栋 32层
公寓挑高:2.6米
停车位:1461 个停车位
居住面积:26— 100.8平方米
起始价格:359万泰铢起
预计完工时间:2028年7月
交付标准:精装送家具
平均价格:约12.5泰铢/平方米
物业费:55泰铢/㎡/月
维修基金费:500泰铢/㎡/一次性
7部电梯、大堂、商店区、洗衣房、外卖领取室、邮箱室、智能储物柜
共享办公空间、半户外空间、孩童天地、洗衣房、多功能厅、娱乐室、空中游泳池、共享厨房、天际休息室、桑拿室、高尔夫模拟室、瑜伽室、狗狗公园、狗狗美容室、宠物俱乐、狗狗泳池
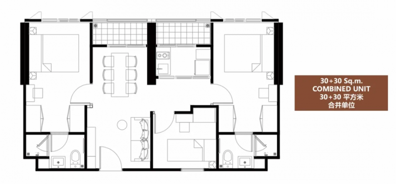
公寓户型:
开间:26㎡-26.5㎡
一房:30㎡-30.5㎡
两房一卫:35.5㎡-40㎡
两房两卫:45.5㎡-53.9㎡
两房三卫:76㎡
三房两卫:70.2㎡
三房三卫:83㎡-100.8㎡
项目位于曼谷房产投资热门板块——Rama 9板块内,该板块是曼谷的第三代CBD所在区域,由政府支持建设,同时这里也是中国大使馆的所在地,大量华人和中资企业进驻在此,因此这里也被称之为“中国人的CBD”。

项目距离MRT蓝色线Phra Rama 9 地铁站约500米,MRT蓝色线是贯穿曼谷的大动脉,也是唯⼀的环线地铁,可轻松链接曼谷各个核心区域,不仅跨越曼谷三大CBD中央商务区,而且围绕整个曼谷市中心建设。
区域配套成熟,轨道交通+6大购物中心近在咫尺,生活机能完善,吃喝玩乐购都能在步行范围内完成,居住的舒适度也非常高。因此,很多租客即使不在这个区域工作,也会在这边租房。
Fortune Town商场--950m
Jodd Fair网红夜市--1km
Central Rama9商场--1.1km
Esplanade Ratchada商场--1.7km
Show DC商场--2.2km
The Street Ratchada商场--2.4km



拉玛九医院--800m
康民医院--3.3km
Piyavate国际医院--1.9km
曼谷医院--4.2km
帕亚泰二国际医院--4.2km



Cental国际学校--1km
曼谷舒兹伯利国际学校--2.7km
NIST国际学校--4km
澳大利亚国际学校--4.2km
Modern国际学校--4.5km
KIS国际学校--5km



开间:26㎡-26.5㎡
一房:30㎡-30.5㎡
两房一卫:35.5㎡-40㎡
两房两卫:45.5㎡-53.9㎡
两房三卫:76㎡
三房两卫:70.2㎡
三房三卫:83㎡-100.8㎡





样板间目前还在打造中,预计将于9月开放参观
目前还有少量低价房源,30平最底价格70w人民币起。
数量有限,价格美丽。
Rhythm Charoenkrung Pavillion 湄南河景 学区房
参考单价:157,000
楼盘地址:Charoenkrung 73, Chan Road 曼谷 湄南河畔 (介于River side和沙吞区域的交汇处,摩天轮码头夜市距离本项目900米)
Baan Klang Muang Classe Sukhumvit 77 联排豪华别墅
参考单价:7.8万泰铢
楼盘地址:Soi Onnut 21, Suanluang Subdistrict, Suanluang District, Bangkok, 10250