
“Villaggio 3 Srinakarin-Bangna”项目的联排别墅和独栋别墅住宅。良好的生活品质,亲近自然,宽敞、阴凉的中心区域。焕然一新的 Camping Ville,是 Land & Houses 的优质项目。
项目位于 Bang Na 地区,可连接多条主要道路。包括 Bangna-Trad 路、Srinakarin 路、Nam Daeng 路和 Kanchanaphisek 路。轻松进出城市,靠近高速公路, 靠近黄线 2 个车站 ,靠近 MEGA Bangna,包括素万那普机场,只需 10-20 分钟。
有一个AirPlus²* 系统,这是一项让房子呼吸的创新,有助于房子内的空气流通。
项目名:Villaggio 3 Srinakarin-Bangna
地产商: Land & Houses
该项目位于:北榄府 Bang Phli 区 Bang Kaeo 街道 Liap Klong Luang Phaeng 路 10540
土地:66莱
房屋类型:2层联排别墅、2层独立屋
单位数:313个单位
三种户型:Celine、La Belle、Princess、Comfy 、Charmy
居住面积:121~165平方米
销售价格:约380万泰铢~900万泰铢
施工情况:2024部分完工
俱乐部
公园
操场
盐系统游泳池、独立儿童游泳池
健身房
大湖
联合办公空间
图书室
Celine
2层联排别墅,使用面积121平方米。
3间卧室、3间浴室、2个停车位
La Belle
2层联排别墅,使用面积138平方米。
3间卧室、3间浴室、1个私人休闲角、2个停车位
Princess
2.5层联排别墅,使用面积138平方米。
3间卧室、3间浴室+1个夹层、2个停车位
Comfy
2层独立屋,使用面积153平方米。
3间卧室、3间浴室、1间办公室、2个停车位
Charmy
2层独立屋,使用面积165平方米。
3间卧室、3间浴室、1间工作室、1个私人休闲角、2个停车位
Villaggio 3 Srinakarin-Bangna Land & Houses的新联排别墅和独立式住宅项目是一个住宅区,也是班纳的黄金地段。项目地点将位于Khlong Luang Phaeng沿线的道路上。您可以通过多种途径进入和退出项目。均来自 Bangna-Trad 路、Srinakarin 路、Buanakarin 路和红荆棘路,亮点是它靠近MEGA Bangna,仅7公里。
轻松进出曼谷、周边地区以及北柳-春武里等附近省份。通过 3 条主要高速公路,包括 Kanchanaphisek 环路、Burapha Withi 高速公路和 Chalerm Mahanakorn 高速公路 这也是一个靠近 MRT 黄线、 MRT 绿线、 LRT Bangna-Suvarnabhumi(未来)和廊曼机场的项目。
它也是一个教育中心,周围有许多私立和国际学校 。靠近孩子们的学校,可以节省交通接送时间,并增加更多的放松时间。


WIH International Hospital: 4.7 km.
Bangna 1 Hospital: 6.4 km.
Sikarin Hospital: 6.8 km.
Synphaet Thepharak Hospital: 7.5 km.
Thainakarin Hospital: 7.5 km.
Synphaet Srinakarin Hospital: 8.1 km.
Paolo Samut Prakan Hospital: 8.8 km.
Prince Suvarnabhumi Hospital: 9 km.
Kluaynamthai Hospital 2 : 10.3 km.
Manarom Hospital: 10.7 km.
Samrong Medical Hospital: 11.4 km.


俱乐部
公园
操场
盐系统游泳池、独立儿童游泳池
健身房
大湖
联合办公空间
图书室
共有 21 个闭路电视摄像机
通过 LPR 和 VMS 系统进出
保安人员全天 24 小时值班
项目大门:

大湖:

户外花园:

慢跑道:
游乐场:
会所:
游泳池:
儿童游泳池:

图书室:

公共厕所:

健身房:

共享休息室和工作室:

三种户型图展示
Celine
2层联排别墅,使用面积121平方米
3间卧室、3间浴室、2个停车位


La Belle
2层联排别墅,使用面积138平方米。
3间卧室、3间浴室、1个私人休闲角、2个停车位



Princess
2.5层联排别墅,使用面积138平方米。
3间卧室、3间浴室+1个夹层、2个停车位



Comfy
2层独立屋,使用面积153平方米。
3间卧室、3间浴室、1间办公室、2个停车位



Charmy
2层独立屋,使用面积165平方米。
3间卧室、3间浴室、1间工作室、1个私人休闲角、2个停车位



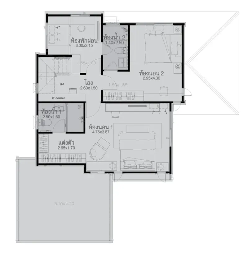
Princess样板房

Princess,这是一栋2.5层的联排别墅,屋前宽度为5.7m,实用面积为134平方米,房屋的功能可以舒适地容纳一个人。中型家庭,设有 3 间卧室、3 间浴室、1 个夹层,可停放 2 辆车,房屋侧面设有花园区。



花园




一楼的客厅、餐厅

厨房

一楼后院

二楼平面图
房屋平面图为二楼+夹层,共有3间卧室,房屋的正面为主卧室。设有连接浴室并增加了夹层的功能,可根据需要更改。该房间的天花板高度为 4.8 m,房子后面是卧室 2 和卧室 3,面积相似。楼上有一间浴室,位于大厅中间,分为干湿区。两间次卧均可使用。


对于二楼的功能,右侧是带夹层的主卧室,左侧是卧室 2 和卧室 3。中间是二楼的浴室,位于 2 间次卧室中间,使用方便。

二楼公共厕所








二楼主卧,该房间的亮点是双容积和阁楼功能,有套间浴室,4.8 m 高的天花板提升了空间,给人一种通风的感觉。具有多功能夹层,可根据需要进行调整使用。

我们去看看房子后面的 2 号卧室和 3 号卧室。


2号卧室



卧室3被装饰成一个大更衣室,供家里每个人使用。实际使用面积与卧室2大小相似,可作为儿童卧室。
Rhythm Charoenkrung Pavillion 湄南河景 学区房
参考单价:157,000
楼盘地址:Charoenkrung 73, Chan Road 曼谷 湄南河畔 (介于River side和沙吞区域的交汇处,摩天轮码头夜市距离本项目900米)
Baan Klang Muang Classe Sukhumvit 77 联排豪华别墅
参考单价:7.8万泰铢
楼盘地址:Soi Onnut 21, Suanluang Subdistrict, Suanluang District, Bangkok, 10250