

是 ASTIN ESTATE 的最新豪华联排别墅,位于曼谷位于 Soi 萨图普拉迪特 34 号,连接萨特霍恩 -西隆商业区, 距离曼谷国王学院国际学校 1 公里。交通便利,生活设施齐全,有一流的购物中心,国际学院,还有在泰国非常著名的医院。
项目是4层联排别墅,现代经典风格,面宽6.45-7.5米,别墅一共有两种户型,居住面积340~400平方米。
项目只有32栋别墅,8个独立单元。采用最高级别的安全系统,保护了用户的隐私性及安全性。
两栋别墅,构成一个独立单元。门口的大门用遥控器进行操纵,保证了用户的安全。

在项目设计上采用了最高端的设计风格及豪华的材料。奢侈与豪华的风格体现在每一个细节上。提升用户的居住价值以及安全性和舒适性。

别墅可以世代相传,永不过时。

项目名称:VERITZ Sathupradit 34
公司:ASTIN ESTATE CO., LTD.
位置 :Soi Sathupradit 34
区域 Yannawa District
别墅类别:4层联排别墅,面宽6.45~7.5米。有两种户型。
项目数量:32栋
居住面积:340-400 平方米
起始价格:2090万泰铢
平均价格:6.15万泰铢
停车场:2-3 辆车
竣工时间:2023年部分完工
项目设施齐全,包括24小时闭路电视监控系统。公园和主门
VOGUE
=4 层联排别墅,面宽 6.45 米,居住面积 340 平方米
=功能 3 卧室,5 间浴室,1 家庭区, 1 多用途客房, 2 停车场
VICTOR
=4 层联排别墅,面宽7.5米,面积 400 平方米
=功能 4 卧室,6 间浴室,1 多用途客房,2-3 个停车位
交通便利,连接萨图普拉迪特路,拉查达皮塞克路,拉玛3路,靠近中央拉玛3购物区,上拉玛三世,莲花,靠近圣玛丽萨图普拉迪特学校,萨拉萨斯皮塔亚学校和萨拉萨斯埃克特拉学校,也靠近圣路易斯医院,BNH医院和曼谷基督教医院。


姆哈纳科恩高速公路(收费站)(700米)
MRT thanon chan (2.2 公里)
BTS chong nonis(3.2 公里)
BTS saint louis(4.0 公里)
BTS sura sak(4.2 公里)


中央广场拉玛3(950米)
上拉玛3(1.6公里)
Lotuss拉玛3(2.0公里)
marketplace(2.9公里)
INT交汇(3.3公里)
马克罗萨特霍恩(3.4公里)
21号航站楼拉玛3(3.7公里)
Asiatique The Riverfront(5.0公里)
iconsiam(7.2公里)







圣母玛利亚·萨图普拉迪特学校(750米)
萨拉萨斯皮塔亚学校(950米)
萨拉萨特埃克特拉学校(950米)
曼谷国王学院国际学校(1.0公里)
新萨特霍恩国际学校(1.5公里)
雨树国际学校(2.6公里)
ASSUMPTION COLLEGE PRIMARY SEC (3.3公里)
肖尔斯伯里国际学校(3.7公里)
曼谷基督教学院(4.2公里)
圣路易斯苏克萨学校(4.2公里)







圣路易斯医院(3.9公里)
BNN Hospital(4.9公里)
曼谷基督教医院(7.0公里)



居住面积340-400平方米。项目有32栋别墅,8个独立单元。共有两种户型:VICTOR和VOGUE。

=4 层联排别墅,面宽 6.45 米,居住面积 340 平方米
=功能 3 卧室,5 间浴室,1 家庭区, 1 多用途客房, 2 停车场

=4 层联排别墅,面宽7.5米,面积 400 平方米
=功能 4 卧室,6 间浴室,1 多用途客房,2-3 个停车位

=4 层联排别墅,面宽7.5米,面积 400 平方米
=功能 4 卧室,6 间浴室,1 多用途客房,2-3 个停车位
优雅的工艺和经典的细节,在超大规模的建筑,体现了经典与优雅。

一楼设有一间与餐厅相连的起居室。生活区有一个房间,可以做泰国厨房。有1间浴室,后院设有洗衣区。停车场位于房子的前面。
2楼设有一间主卧室,设有步入式衣帽间、浴室和浴缸。

3楼设有2间卧室,配有步入式衣帽间和内部浴室。
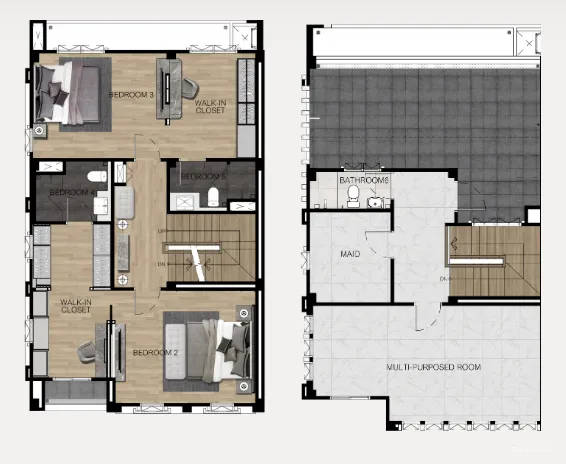
4楼设有1间浴室、1间女佣房和1间多功能厅,可用作另一间卧室。













=4 层联排别墅,面宽 6.45 米,居住面积 340 平方米
=功能 3 卧室,5 间浴室,1 家庭区, 1 多用途客房, 2 停车场
实用的居住空间与经典现代化设计风格是每位精英人士完美的选择。

一楼设有一间与餐厅相连的起居室。生活区有一个房间,可以做泰国厨房。
有1间浴室,后院设有洗衣区。停车场位于房子的前面。
2楼设有一间主卧室,设有步入式衣帽间、浴室和浴缸。

3楼设有2间卧室,配有步入式衣帽间和内部浴室。
4楼设有1间浴室、1间女佣房和1间多功能厅,可用作另一间卧室。











Rhythm Charoenkrung Pavillion 湄南河景 学区房
参考单价:157,000
楼盘地址:Charoenkrung 73, Chan Road 曼谷 湄南河畔 (介于River side和沙吞区域的交汇处,摩天轮码头夜市距离本项目900米)
Baan Klang Muang Classe Sukhumvit 77 联排豪华别墅
参考单价:7.8万泰铢
楼盘地址:Soi Onnut 21, Suanluang Subdistrict, Suanluang District, Bangkok, 10250